Plot 76

HERTFORD

Lightfoot Lane, Fulwood, Preston, Lancashire, PR4 0AH
  • 4 bedrooms
  • Sold

This property is available on Home Reach. Here you can buy the 40% share price shown and pay a low monthly rent on the 60% you don’t buy.

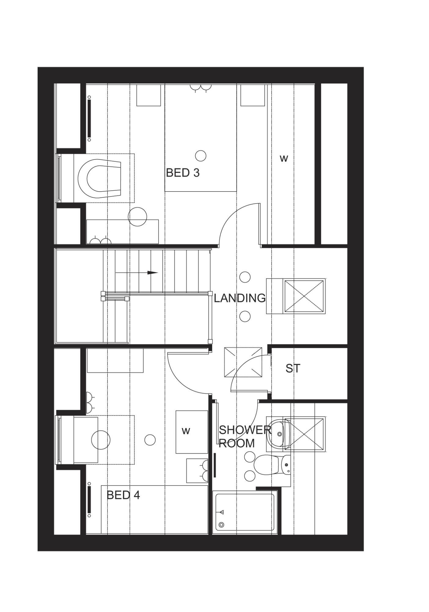
The Hertford is a modern 4 bedroom home spread across 3 floors.

You could afford a new David Wilson home with an income of only £37,951*

 

40% share of The Hertford - only £123,198

 

Click here more details.

*based on calculations provided by our partner, heylo housing

    • Shared ownership home
    • Part-buy, part-rent
    • Only £37,951* income required
    • £2,500 towards moving costs*
    • Offer ends 15th November
    • *Selected plots only, subject to lender criteria
    Images include optional upgrades at additional cost
    Dining table
    Lower mortgage rates and reduced monthly payments with Own New - Rate Reducer.
    External Image of Hertford Show Home at Centurion Village

    View a show home

    The nearest show home of this house style is 22 minutes away at our Centurion Village development - Longmeanygate, Midge Hall, Leyland

    Explore

    Floor plans