The Bradgate

The Bradgate is a house you’ll be proud to call your home from the moment you step foot into the spacious hallway which opens up this 4 bedroom home. You’ll benefit from a study and an impressive open-plan kitchen with family & dining areas that is the hub of the home. A walk-in glazed bay with French doors leads to the rear garden, allowing the outside to flow in. The bay-fronted lounge gives this property character.

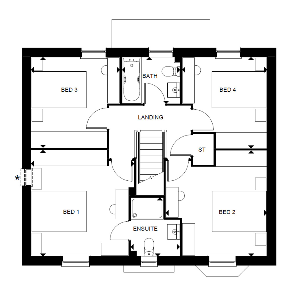
Upstairs are 4 impressive bedrooms, the main bedroom with en suite and all offering spaces for wardrobes and plenty of sockets for the family to plug in where needed. There is a separate utility room and a storage cupboard under the stairs - supporting clutter-free living at its finest.

The Bradgate

A home to suit your lifestyle

  • Modern 4 bedroom, detached family home
  • Separate utility room & study
  • Open-plan kitchen with breakfast, dining & family areas
Bradgate Standard Ground Floorplan
Bradgate Standard First Floorplan
The Bradgate
The Bradgate

Please note that all images are for illustrative purposes only. Final elevations of the property purchased may differ from those shown. Images include optional upgrades at additional cost. Please see our Image Disclaimer for further details.